Latest News

Little Haiti residents fear being pushed out. They're pushing back on big developments.

Little Haiti activist Marleine Bastien, left, led a group of residents opposed to a proposed 22-acre redevelopment called Eastside Ridge during a 2018 hearing at Miami City Hall. The massive complex of residential and commercial towers would replace the D Place apartments on the corner of Northeast Second Avenue and Northeast 50th Street.
Little Haiti activist Marleine Bastien, left, led a group of residents opposed to a proposed 22-acre redevelopment called Eastside Ridge during a 2018 hearing at Miami City Hall. The massive complex of residential and commercial towers would replace the D Place apartments on the corner of Northeast Second Avenue and Northeast 50th Street. jflechas@miamiherald.com

Pastor Erick Jules shouted into the night, one voice in a chorus of about 25 people chanting outside Miami City Hall around 1 a.m.

"Little Haiti not for sale! Little Haiti not for sale!" they shouted Thursday morning, hoisting signs that said the same. They celebrated after a late-night meeting where they had just succeeded in delaying a large-scale redevelopment of 22 acres that many see as the opening salvo in an wave of gentrification that could rapidly transform their swath of Miami and boost housing prices beyond what they could afford.

"Here in Little Haiti, we are sitting on some of the most precious land in the city," Jules had told the board an hour earlier. Jules, the pastor at One God in Three Persons First Baptist Church, was one of more than a dozen local residents who spoke out against the specific project and against gentrification in general.

The project at hand was Eastside Ridge, a large complex of more than 10 buildings, including towers rising about 20 stories, that would replace low-slung Design Place apartments on the corner of Northeast Second Avenue and 50th Street. Architect Kobi Karp designed the residential, hotel and commercial project for landlord SPV Realty.

This rendering shows an aerial view of the proposed Eastside Ridge development, looking south from about 54th Avenue.
This rendering shows an aerial view of the proposed Eastside Ridge development, looking south from about 54th Avenue. Architect Kobi Karp

Some residents who attended the meeting were either supportive or lukewarm on the development, which is proposed to come with public benefits that would include workforce housing, jobs for people in Little Haiti and new park space.

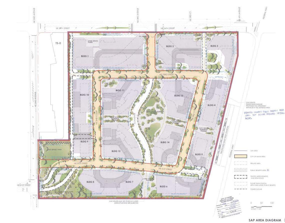
This diagram shows the site plan for the proposed Eastside Ridge project.
This diagram shows the site plan for the proposed Eastside Ridge project.

But the louder and larger part of the audience voiced strong criticism of the Eastside Ridge proposal and, on a higher order, Miami's approach to redrawing neighborhoods using large-scale redevelopment. Many opponents who spoke are hospitality workers represented by Unite Here Local 355, the county's only hotel union, and they insisted that Eastside Ridge can provide more benefits for the community and ensure that the development keeps Little Haiti residents from being displaced.

One resident after another decried the influx of "special area plans" on the horizon. Such plans allow developers who own nine acres or more of contiguous land to ask for greater density and height in exchange for public amenities, such as parks.

Read Next

Five of these projects are in the works for tracts of land north of Interstate 195, with Eastside Ridge furthest along in the planning process. Residents want the city to consider all the proposals together because they fear the identity of Little Haiti is going to be wiped out one mega development at a time.

"We have five major, mammoth developments like Eastside Ridge coming to the area," said Marleine Bastien, executive director of Haitian Women of Miami. "This is overdevelopment on steroids."

Besides Eastside Ridge, four other similar plans are in development:

Legions West, a 1.2 million-square-foot complex that would abut Legion Park.

Miami Jewish Health Systems, across Second Avenue from Design Place, which is planning an expansion of an existing campus.

Magic City, a 15-acre assemblage including industrial buildings and a demolished trailer park straddling Little Haiti and Little River that developers Tony Cho and Bob Zangrillo want to convert into a technology, residential and cultural center.

Archbishop Curley-Notre Dame High School site, 15 acres directly south of Design Place, where the developer wants to build apartments, condos and retail space. The developer is the same team behind the recently approved American Dream Mall in Northwest Miami-Dade.

Late Wednesday, planning board members allowed the Eastside Ridge development team to make a brief presentation, but the hearing was mostly dedicated to allowing the public to weigh in because people had waited hours through other unrelated votes to speak on Eastside Ridge.

After the meeting stretched into Thursday morning, the board asked the Eastside Ridge team to meet with activists and negotiate further so more consensus can be built before the proposal comes back in September. Among the requests from the board: that the developer include onsite affordable housing.

Ric Katz, a representative of the owner, said on Thursday that the team is open to talks with the community.

"I have no doubt they will talk to us," he said. "I have no doubt Marleine and her group will sit down and talk specifics. We would greatly welcome that."

The board agreed to hear the proposal again Sept. 5.

This story was originally published June 21, 2018 at 8:08 PM with the headline "Little Haiti residents fear being pushed out. They're pushing back on big developments.."

Get unlimited digital access
#ReadLocal

Try 1 month for $1

CLAIM OFFER